Home
Wooden houses
106 m2 - Aston
126 m2 - Capri
127 m2 - Capella
142 m2 - Toscana
144 m2 - Elegia
161 m2 - Leonardo
169 m2 - Donatella
172 m2 - Santorini
204 m2 - Olimpia
215 m2 - Victoria
221 m2 - Renaissance
245 m2 - Paradise
263 m2 - Cassandra
303 m2 - Versalles
366 m2 - Eco Palace
Technologies
Products
Wood products
Plywood MR
Plywood WBR
Plywood FOF
MDF
HDF
MDF.H
Laminated MDF
Chipboard
Laminated chipboard
Fiberboard
Laminate flooring
Chipboard fast floor
Latoflex
Glued laminated timber
Window scantlings (GLULAM)
Finger-jointed planed board
Planed profiled products
Lumber
Teak board
Wood pellets
Fuel briquettes RUF
Wooden houses
106 m2 - Aston
126 m2 - Capri
127 m2 - Capella
142 m2 - Toscana
144 m2 - Elegia
161 m2 - Leonardo
169 m2 - Donatella
172 m2 - Santorini
204 m2 - Olimpia
215 m2 - Victoria
221 m2 - Renaissance
245 m2 - Paradise
263 m2 - Cassandra
303 m2 - Versalles
366 m2 - Eco Palace
Garden houses
Petroleum products
Fertilizers
Muriate of potash
NPK
Urea 46
About us
Documents
Contacts
EN
EN
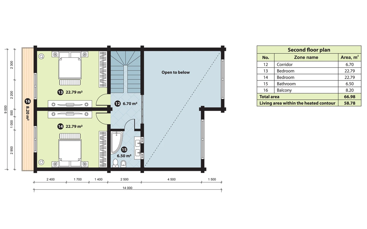
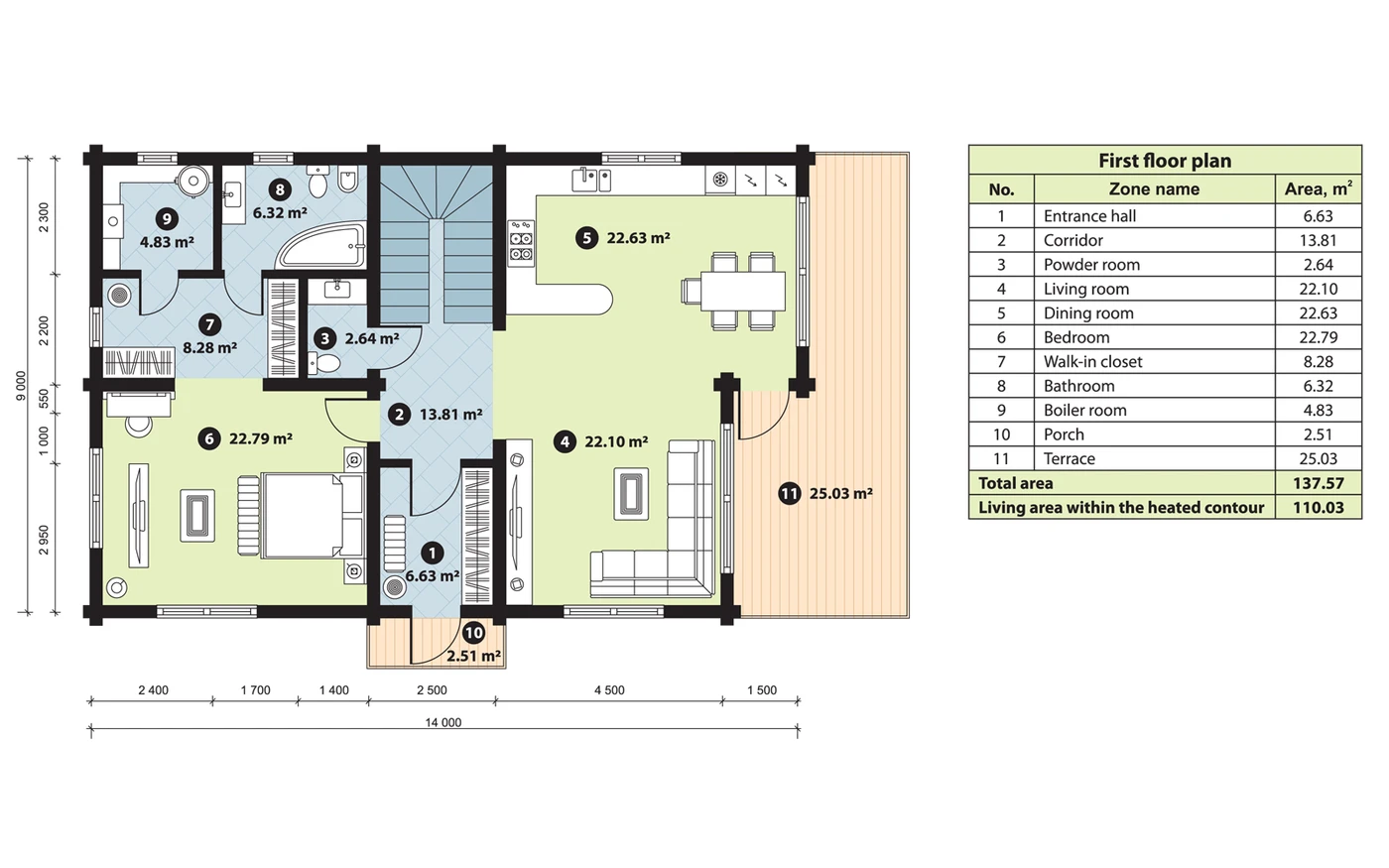
Donatella
Living area
169 m
2
Total area
205 m
2
2
Floors
4
Rooms
2
Bathrooms
Home
Products
Wooden houses
169 m2 - Donatella
Catalog of wooden houses